评价成果发布
2021市优 | 中国医学科学院药物研究所产学研基地(公共建筑一等奖)
来源:北京工程勘察设计协会
发布时间:2023-05-11

“北京市优秀工程勘察设计奖”是由北京工程勘察设计协会主办,北京市规划和自然资源委员会指导的北京市勘察设计行业最高奖项,分为综合奖、专项奖、单项奖三个类别。本届奖项评选从2021年4月27日申报开始至7月30日初审结束,评审专家组严格按照“北京市优秀工程勘察设计奖”评审要求,对申报项目进行认真筛选和综合评价,经北京工程勘察设计协会审定,最终评选出综合奖519项,专项奖262项,单项奖123项。其中,建筑工程设计综合奖(公共建筑)一等奖35项,二等奖59项,三等奖71项,现对一等奖获奖项目成果进行展示如下:
中国医学科学院药物研究所产学研基地

开学季,中国医学科学院药物研究所的科研人员迎来了期盼已久的“开学礼物”——他们的新药创制产学研基地,也由此开启了药物研究所发展的新篇章。成立于1958年的中国医学科学院药物研究所(以下简称药研所),隶属于中国医学科学院北京协和医学院,拥有正副研究员158名,中国科学院院士1名,中国工程院院士1名,教育部长江学者特聘教授3名,雄厚的科研实力与历史文化是其核心软实力。

▲ 协和医学院,建于1917年
组织机构的发展离不开文化,而文化源自于共同记忆。始于协和的发展经历,让药研所的员工,对协和原校址中西合璧的建筑风格,院落、灰砖、绿瓦、垂花门有着深刻的记忆。
因此,在设计位于大兴生物医药基地协和药厂新厂区内的药研所基地时,在满足工艺流程与可持续理念的基础上,合理融入“协和”元素,就成为设计的重点。建筑师希望将建筑营造为凝聚共同文化记忆的载体。我们以对药研所“献身、创新、求实、协作”的精神解读为着手点,设计由此展开。
整体布局科学合理,使用便利。基于实验室工艺需求,将建筑的进深合理控制于三跨柱网,形成东西4层、南北5层的回字形布局。入口设置于临近园区主入口方向的东南向,生物楼呈L型布置在西北侧,而将化学实验室放于下风向的东南侧。除了满足实验室这一核心的功能空间外,还适当设置了室内外的配套服务空间,提升科研工作环境的舒适度。

▲ 功能分析图

现代医药的研发是多学科交叉的结果,创新源自交流,为此,我们重点打造了不同层次的室内外流空间。首先将入口大堂空间设置为可供集会、展示等公共活动举办的空间,其次以围合院落、下沉庭院、露台等作为室外交流互动场所,并设置部分2至3层的竖向空间,既满足了通风采光的要求,又成为半公共的交流空间。

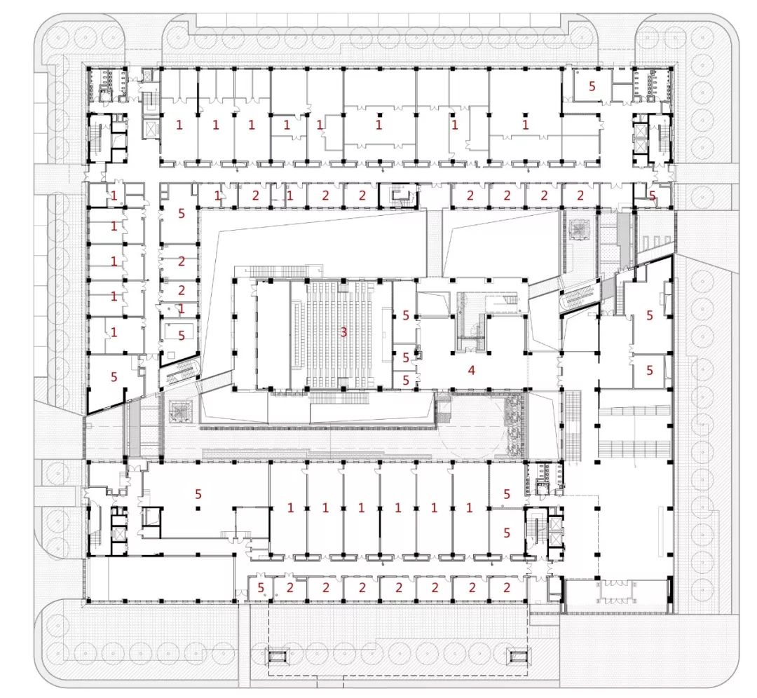
▲ 首层平面图
1 实验室、仪器室 2 数据处理间 3 阶梯教室 4 展廊 5 设备用房

▲ 室内
化学楼与生物楼之间的连廊,东西两侧屋面同样是不同学科间的室外交流空间,不同层次的交流共享空间串联起来,形成一个连贯立体的公共交往空间体系,最终形成一个促进交流、探讨的建筑。
▲ 剖面图
1 实验室、仪器室 2 数据处理间 3 阶梯教室 4 展廊
5 贵宾休息室 6 健身房 7 边庭 8 平台 9 设备用房

▲ 内庭院
标准实验室单元模式为数据分析室 + 走廊 + 实验室。实验室面宽根据实验柜的模数布置,单元间设活动隔墙,可根据不同实验课题组的需要弹性地进行划分,并仅重点对通风柜中的空气加热或制冷,较好地平衡了使用舒适性与节能之间的矛盾。

▲ 实验室模块图
为延续协和医科大学的文脉与记忆,设计以协和医科大学的灰砖为主,并结合药研所目前使用的办公楼上浅下深的构图、方格形窗形式,整体采用现代简约的手法。▲ 外景
首二层外立面砌块采用真砖砌筑,师法协和医科大学校址的工艺,注重窗洞口处的处理,楼梯间位置采用花砖砌筑,上部采用方格形窗。入口处对垂花门进行基于现代手法的抽像再现,拾起对协和校园记忆。与此同时,新的设计也为建筑注入了新元素。如立面窗洞口处设置木色的通风百叶,入口处角部处理成回纹形构图,在呼应传统的基础上配合黄绿相间的彩釉玻璃,既增添了活力,也强化了入口空间的标识性与仪式感,借此传达出协和东西合壁的特征。洞口处条状铝板以不同色调的绿形成肌理,这是对协和老校址入口处琉璃瓦的演绎与升华。
项目名称:中国医学科学院药物研究所产学研基地
荣获奖项:2021年市优丨建筑工程设计综合奖(公共建筑)一等奖
获奖人员:景泉、徐元卿、张翼南、李静威、吴锡嘉、王鑫、李建业、祝秀娟、张辉、刘晓琳、赵昕、邓雪映、李力、禚新伦、李雪菲
获奖单位:中国建筑设计研究院有限公司
建设单位:北京协和药厂
项目地点:北京市大兴区
设计时间:2013年-2015年
建成时间:2018年
总用地面积:13.2 ha
总建筑面积:4.31 万㎡
建筑高度:23.8 m
摄影:张广源
单位地址:北京市西城区南礼士路二条2号院二号楼 102
电话(传真):010-68018407 010-68016541 010-68010400
邮箱:xiehui_office@163.com 邮政编码:100045
北勘设协公众号
培训中心公众号
版权所有:北京工程勘察设计协会 京ICP备14017916号